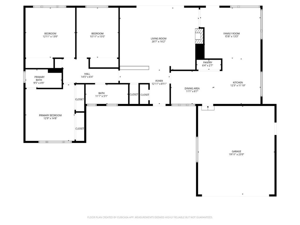
Located in the coveted Blossom Manor neighborhood, this inviting single-story residence offers beautifully maintained living spaces, mature landscaping, and a thoughtfully designed floor plan for comfortable everyday living. Framed by graceful oleander trees and charming front brick patio, the home offers timeless curb appeal. Inside, sun-lit interiors and well-proportioned living spaces create an effortless flow throughout. New LVP flooring extends through the main living areas, while the spacious living room features a vaulted ceiling, sliding doors to the backyard, and brick fireplace wall shared with the adjoining family room. The functional floor plan also includes bright kitchen with SS refrigerator and dishwasher, large pantry, and dining area. New carpet adds comfort to the bedroom wing, including a spacious primary suite with dual closets. Additional highlights include solar, A/C, dual-pane windows, and attached 2-car garage. The private backyard offers patio space, mature trees, and fruit tree - creating a peaceful setting for relaxation or entertaining. Ideally located near Blossom Hill Park, Vasona Lake, scenic trails, and DT Los Gatos, this home offers the best of Blossom Manor living with swim club membership, top-rated schools, and convenient access to major hwys.
|
LAST UPDATED
|
4/19/2026
|
YEAR BUILT
|
1960
|
|
GARAGE SPACES
|
2.0
|
COUNTY
|
Santa Clara
|
|
STATUS
|
Pending
|
PROPERTY TYPE(S)
|
Single Family
|
| Elementary School |
Blossom Hill Elementary |
| Jr. High School |
Raymond J. Fisher Middle |
| High School |
Los Gatos High |
| AIR |
Central Air |
| AIR CONDITIONING |
Yes |
| APPLIANCES |
Dishwasher, Disposal, Exhaust Fan, Range Hood, Refrigerator, Washer/Dryer |
| FIREPLACE |
Yes |
| GARAGE |
Attached Garage, Yes |
| HEAT |
Central, Forced Air |
| INTERIOR |
Beamed Ceilings, Pantry |
| LOT |
0 |
| LOT DESCRIPTION |
Back Yard, Level |
| LOT DIMENSIONS |
8610.00 |
| PARKING |
Attached, On Street, Garage Door Opener |
| POOL DESCRIPTION |
None |
| SEWER |
Public Sewer |
| STORIES |
1 |
| STYLE |
Ranch |
| WATER |
Public |
| ZONING |
R18 |
Listed by Ducky Grabill | 408-761-4073, Christie's International Real Estate Sereno
The data relating to real estate for sale on this website comes in part from the Internet Data Exchange program of the MLSListings™ MLS system. All real estate listings in the MLSListings MLS system are marked with the MLSListings Internet Data Exchange icon (a stylized house inside a circle), and detailed information about them includes the names of the listing brokers and listing agents.
Based on information from MLSListings MLS as of 4/19/26 7:14 PM PDT. All data, including all measurements and calculations of area, is obtained from various sources and has not been, and will not be, verified by broker or MLS. All information should be independently reviewed and verified for accuracy. Properties may or may not be listed by the office/agent presenting the information.
Copyright 2026 MLSListings Inc. All rights reserved.
This IDX solution is (c) Diverse Solutions 2026.
We respect your online privacy and will never spam you. By submitting this form with your telephone number
you are consenting for Stanley
Lo to contact you even if your name is on a Federal or State
"Do not call List".
Save favorite listings, searches, and get the latest alerts
Save your favorite listings, searches, and receive the latest listing alerts